Nắp bể kỹ thuật hồ bơi là một phần quan trọng trong hệ thống kỹ thuật của hồ bơi, giúp bảo vệ và che chắn các thiết bị, đường ống và các hệ thống phụ trợ bên dưới bể. Nắp này giúp giữ an toàn cho người sử dụng và đảm bảo việc bảo trì, sửa chữa dễ dàng hơn mà không cần phải tháo dỡ các cấu trúc xung quanh. Các loại nắp bể kỹ thuật hồ bơi thường có đặc điểm như sau:
- Chất liệu:
- Nhựa PVC: Chắc chắn, bền, chống ăn mòn, dễ dàng vệ sinh.
- Kim loại (thường là thép không gỉ hoặc nhôm): Bền vững và chịu lực tốt, nhưng cần được bảo vệ khỏi rỉ sét.
- Vật liệu composite: Kết hợp giữa nhựa và các sợi cốt thép, có độ bền cao, chịu lực tốt, và chống ăn mòn hiệu quả.

- Thiết kế:
- Nắp tròn: Phổ biến cho các hệ thống kỹ thuật nhỏ hoặc có không gian giới hạn.
- Nắp vuông: Dễ dàng lắp đặt trên các bể có không gian lớn hơn hoặc có thiết kế hệ thống kỹ thuật phức tạp.
- Nắp lưới: Dành cho những bể cần khả năng thoát nước nhanh hoặc lưu thông khí, thường được sử dụng cho các khu vực ngoài trời.
- Chức năng:
- Bảo vệ thiết bị: Giúp bảo vệ các thiết bị bể bơi như máy bơm, bộ lọc, hệ thống đường ống khỏi các yếu tố môi trường và tác động từ bên ngoài.
- Dễ dàng bảo trì: Thiết kế nắp bể giúp việc bảo trì, kiểm tra hệ thống dễ dàng hơn mà không cần phải tháo dỡ toàn bộ cấu trúc.
- Chống trơn trượt: Một số nắp có thiết kế bề mặt chống trượt để tránh tai nạn khi di chuyển gần khu vực kỹ thuật của bể bơi.
- Kích thước:
- Kích thước nắp bể kỹ thuật sẽ phụ thuộc vào kích thước của bể và yêu cầu cụ thể của hệ thống kỹ thuật. Thông thường, các nắp bể sẽ có đường kính hoặc kích thước từ 30cm đến 100cm.
Lựa chọn nắp bể kỹ thuật phù hợp sẽ giúp tăng cường tính an toàn và hiệu quả của hệ thống hồ bơi, đồng thời giảm thiểu chi phí bảo trì lâu dài.


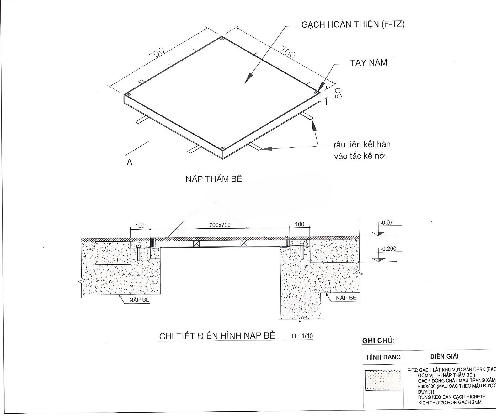
Nắp thăm bể cân bằng hồ bơi là một bộ phận quan trọng trong hệ thống hồ bơi, giúp kiểm soát và duy trì sự ổn định của mực nước trong hồ. Bể cân bằng (hay còn gọi là bể tràn, bể hồi lưu) giúp điều tiết nước trong hồ bơi, đồng thời giảm thiểu sự thay đổi mực nước khi người bơi vào hoặc ra khỏi hồ.
Nắp thăm thường được thiết kế để dễ dàng mở ra để kiểm tra hoặc bảo trì hệ thống. Các chức năng của nắp thăm bể cân bằng có thể bao gồm:
- Kiểm tra và bảo trì hệ thống: Nắp thăm cho phép các kỹ thuật viên hoặc người bảo trì tiếp cận các bộ phận bên trong của bể cân bằng, như van, ống dẫn, hoặc các thiết bị kiểm soát nước.
- Đảm bảo lưu thông nước: Nắp thăm cần được thiết kế kín để đảm bảo không có sự rò rỉ nước và đảm bảo lưu thông nước ổn định trong hệ thống.
- Vị trí dễ tiếp cận: Nắp thăm thường được đặt ở vị trí dễ tiếp cận trên bể cân bằng, giúp dễ dàng mở ra khi cần thiết mà không gây ảnh hưởng đến cấu trúc của hồ bơi.
Các loại nắp thăm có thể được làm từ vật liệu bền bỉ như nhựa composite, inox, hoặc vật liệu chống ăn mòn khác, tùy thuộc vào yêu cầu sử dụng và môi trường.
Nắp bể âm sàn Chung Phúc là một sản phẩm phổ biến dùng trong các hệ thống bể ngầm, thường được sử dụng trong các công trình hồ bơi, hệ thống thoát nước, hoặc các bể chứa nước, đặc biệt là trong các khu vực yêu cầu tính thẩm mỹ và độ bền cao.
Đặc điểm của nắp bể âm sàn Chung Phúc:
- Thiết kế âm sàn: Nắp bể âm sàn được thiết kế để lắp đặt chìm trong mặt sàn, giúp bề mặt sàn trở nên đồng nhất và không gây cản trở cho việc đi lại. Điều này làm cho nắp bể ít gây ảnh hưởng đến không gian xung quanh.
- Chất liệu bền bỉ: Các nắp bể âm sàn của Chung Phúc thường được sản xuất từ các vật liệu cao cấp như nhôm, thép không gỉ, hoặc hợp kim đặc biệt, có khả năng chống ăn mòn, chịu được tải trọng lớn, và dễ dàng bảo trì.
- Chịu tải trọng lớn: Các nắp bể âm sàn được thiết kế để chịu được lực tác động lớn, vì vậy chúng thường được sử dụng cho những khu vực có lưu lượng người qua lại cao hoặc cho những công trình yêu cầu độ bền và an toàn cao.
- Khả năng chống thấm nước: Nắp bể âm sàn cần phải có khả năng chống thấm tốt để đảm bảo không có sự rò rỉ nước từ bể chứa ra ngoài. Điều này rất quan trọng trong các hệ thống bể bơi, hệ thống thoát nước, hoặc các bể chứa nước.
- Dễ dàng mở và bảo trì: Nắp bể âm sàn Chung Phúc thường được thiết kế với cơ chế mở dễ dàng, giúp cho việc kiểm tra, bảo trì hoặc sửa chữa hệ thống bên dưới được thực hiện thuận tiện mà không mất quá nhiều thời gian.
Ứng dụng:
- Hồ bơi: Nắp bể âm sàn có thể được dùng cho bể cân bằng, bể lọc, hoặc các bể chứa nước phụ trợ trong hệ thống hồ bơi.
- Hệ thống thoát nước: Nắp bể âm sàn cũng thường được sử dụng trong các hệ thống thoát nước đô thị, hệ thống thoát nước mưa, hay các bể ngầm lưu trữ nước thải.
- Công trình xây dựng: Trong các công trình có yêu cầu về tính thẩm mỹ và bền bỉ, nắp bể âm sàn giúp giữ cho không gian xung quanh gọn gàng và đồng bộ.
Nắp bể âm sàn Chung Phúc là lựa chọn lý tưởng cho các công trình cần đảm bảo tính thẩm mỹ, độ bền cao, cũng như khả năng chịu tải trọng lớn và chống thấm hiệu quả.

